Woningplattegronden De Brinktoren

Op deze pagina ziet u voorbeeldplattegronden van de meest voorkomende woningtypes in De Brinktoren. In de advertenties van MijnDak ziet u straks bij elk te verhuren adres de juiste plattegrond.

Deze plattegronden zijn bedoeld om u een indruk te geven wat er verhuurd gaat worden in De Brinktoren en hoe u de woning zou kunnen inrichten.

U huurt de woning zonder inrichting en keukenapparatuur. U kunt geen rechten ontlenen aan de plattegrond of inrichting.

Naar de verdiepingsoverzichten

Voorbeeldplattegronden van een éénkamerwoning (studio)

Jongerenwoningen voor jongeren 23 t/m 27 jaar

Woningtype A7

Aantal kamers: 1 / 2
Huurprijs € 713,20 (prijspeil 2026)
WWS oppervlakte ca 28 m2
Voor 1 persoonshuishoudens (jongerencontract 5 jaar)

  • Gelegen op 7e t/m 11e verdieping
  •  Aparte keuken (rechte keuken)
  • Woon-/slaapkamer
  • Badkamer
  • Apart toilet (hangtoilet)
  • Berging met mechanische ventilatie (WTW) en wasmachineaansluiting
  •  Geen eigen buitenruimte
  • Externe berging aanwezig
Voorbeeldplattegrond 1-kamerwoning type A7
Voorbeeldplattegrond 1-kamerwoning type A7

Jongerenwoningen voor jongeren 23 t/m 27 jaar 

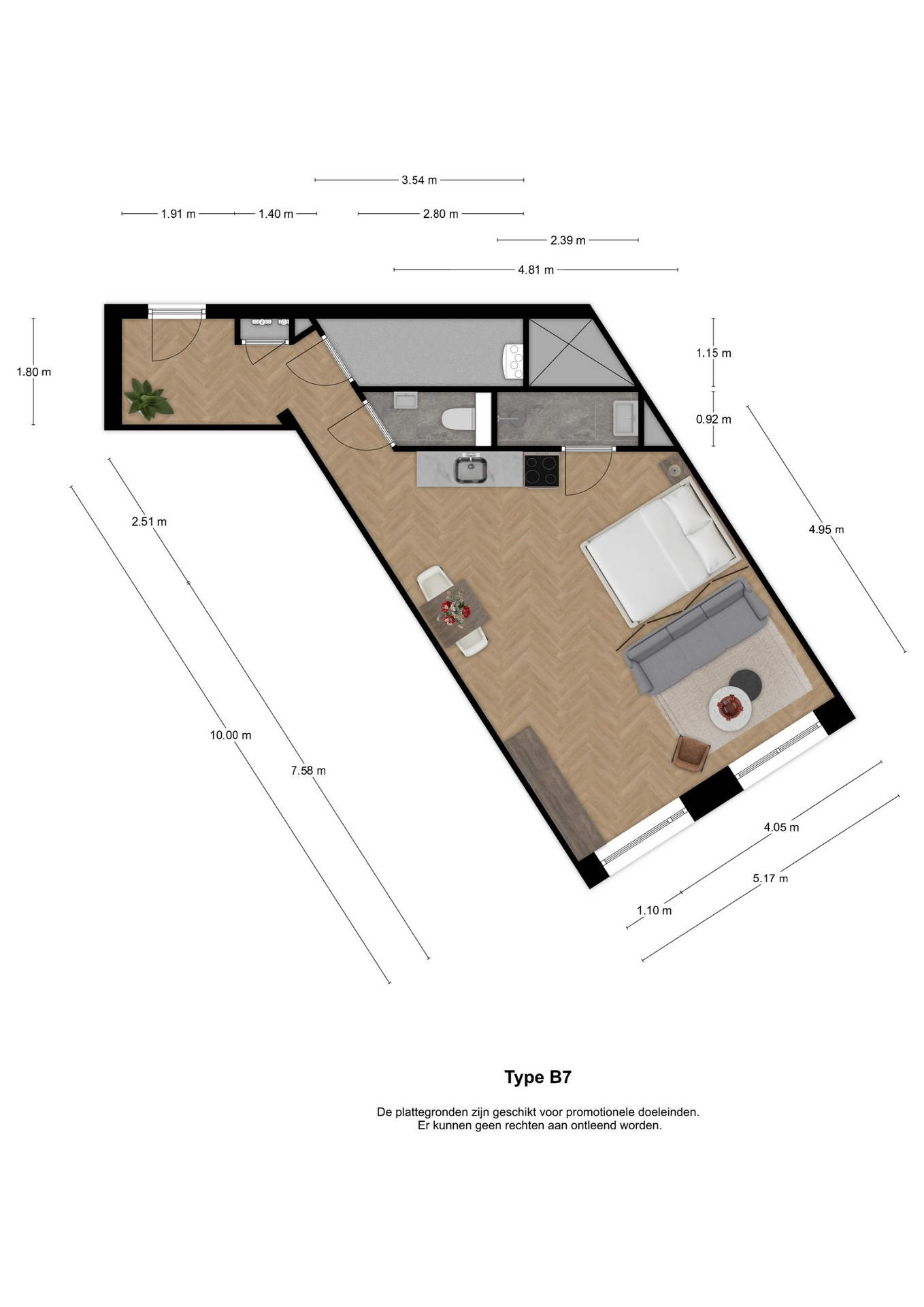
Woningtype B7 

Aantal kamers: 1 
Huurprijs € 910 (prijspeil 2026) 
WWS oppervlakte ca 43m2
Voor 1 persoonshuishoudens (jongerencontract 5 jaar)

  • Gelegen op 3e t/m 5e verdieping 
  • Woon-/slaapkamer/keuken
  • Badkamer
  • Apart toilet (hangtoilet)
  • Berging met mechanische ventilatie (WTW) en wasmachineaansluiting
  • Geen eigen buitenruimte
  • Externe berging aanwezig
Voorbeeldplattegrond 1-kamerwoning type B7
Voorbeeldplattegrond 1-kamerwoning type B7

Jongerenwoningen voor jongeren 23 t/m 27 jaar 

Woningtype B19

Aantal kamers: 1
Huurprijs € 713,02 (prijspeil 2026) 
WWS oppervlakte ca 38,5m2
Voor 1 persoonshuishoudens (jongerencontract 5 jaar)

  • Gelegen op 6e t/m 8e verdieping
  • Woon-/slaapkamer/keuken
  • Badkamer
  • Apart toilet (hangtoilet)
  • Berging met mechanische ventilatie (WTW) en wasmachineaansluiting
  • Geen eigen buitenruimte
  • Externe berging aanwezig
Voorbeeldplattegrond 1-kamerwoning type B19
Voorbeeldplattegrond 1-kamerwoning type B19

Jongerenwoningen voor jongeren 23 t/m 27 jaar 

Woningtype B32

Aantal kamers: 1
Huurprijs € 910 (prijspeil 2026) 
WWS oppervlakte ca 45,5m2
Voor 1 persoonshuishoudens (jongerencontract 5 jaar)

  • Gelegen op 9e t/m 11e verdieping
  • Woon-/slaapkamer/keuken
  • Badkamer met toilet (hangtoilet)
  • Berging met mechanische ventilatie (WTW) en wasmachineaansluiting
  • Geen eigen buitenruimte
  • Externe berging aanwezig
Voorbeeldplattegrond 1-kamerwoning type B32
Voorbeeldplattegrond 1-kamerwoning type B32

Voorbeeldplattegronden van een tweekamerwoning

Woningtype B6

Aantal kamers: 2 
Huurprijs € 910 (prijspeil 2026) 
WWS oppervlakte ca 39,5 m2
Voor 1 à 2 persoonshuishoudens 

  • Gelegen op 3e t/m 6e verdieping
  • Woonkamer met open keuken (hoekkeuken)
  • 1 slaapkamer
  • Badkamer met hangtoilet
  • Berging mechanische ventilatie (WTW) en wasmachineaansluiting
  • De woning heeft een eigen buitenruimte
  • Externe berging aanwezig
Voorbeeldplattegrond 2-kamerwoning type B6
Voorbeeldplattegrond 2-kamerwoning type B6

Woningtype B8

Aantal kamers: 2 
Huurprijs € 713,02 (prijspeil 2026) 
WWS oppervlakte ca 30m2
Voor 1 à 2 persoonshuishoudens 

  • Gelegen op 2e t/m 4e verdieping
  • Woonkamer met open keuken
  • 1 slaapkamer
  • Badkamer met hangtoilet
  • Berging mechanische ventilatie (WTW) en wasmachineaansluiting
  • De woning heeft een eigen buitenruimte
  • Externe berging aanwezig
Voorbeeldplattegrond 2-kamerwoning type B8
Voorbeeldplattegrond 2-kamerwoning type B8

Woningtype B11

Aantal kamers: 2 
Huurprijs € 910 (prijspeil 2026) 
WWS oppervlakte ca 37,5m2
Voor 1 à 2 persoonshuishoudens 

  • Gelegen op 3e en 5e verdieping
  • Woonkamer met open keuken (hoekkeuken)
  • 1 slaapkamer
  • Badkamer met toilet (hangtoilet)
  • Berging mechanische ventilatie (WTW) en wasmachineaansluiting
  • De woning heeft een eigen buitenruimte
  • Externe berging aanwezig
Voorbeeldplattegrond 2-kamerwoning type B11
Voorbeeldplattegrond 2-kamerwoning type B11

Woningtype B13

Aantal kamers: 2 
Huurprijs € 713,02 (prijspeil 2026) 
WWS oppervlakte ca 30,5m2
Voor 1 à 2 persoonshuishoudens 

  • Gelegen op 3e en 5e verdieping
  • Woonkamer met open keuken (hoekkeuken)
  • 1 slaapkamer
  • Badkamer
  • Apart toilet (hangtoilet)
  • Berging mechanische ventilatie (WTW) en wasmachineaansluiting
  • De woning heeft een eigen buitenruimte
  • Externe berging aanwezig
Voorbeeldplattegrond 2-kamerwoning type B13
Voorbeeldplattegrond 2-kamerwoning type B13

Woningtype B23

Aantal kamers: 2 
Huurprijs € 910 (prijspeil 2026) 
WWS oppervlakte ca 34m2
Voor 1 à 2 persoonshuishoudens 

  • Gelegen op 6e t/m 11e verdieping
  • Woonkamer met open keuken (hoekkeuken)
  • 1 slaapkamer
  • Badkamer
  • Apart toilet (hangtoilet)
  • Berging mechanische ventilatie (WTW) en wasmachineaansluiting
  • De woning heeft een eigen buitenruimte
  • Externe berging aanwezig
Voorbeeldplattegrond 2-kamerwoning type B23
Voorbeeldplattegrond 2-kamerwoning type B23

Woningtype B26

Aantal kamers: 2 
Huurprijs € 713,02 (prijspeil 2026) 
WWS oppervlakte ca 35m2
Voor 1 à 2 persoonshuishoudens 

  • Gelegen op 7e en 10e verdieping
  • Woonkamer met open keuken
  • 1 slaapkamer
  • Badkamer met toilet (hangtoilet)
  • Berging mechanische ventilatie (WTW) en wasmachineaansluiting
  • De woning heeft een eigen buitenruimte
  • Externe berging aanwezig
Voorbeeldplattegrond 2-kamerwoning type B26
Voorbeeldplattegrond 2-kamerwoning type B26

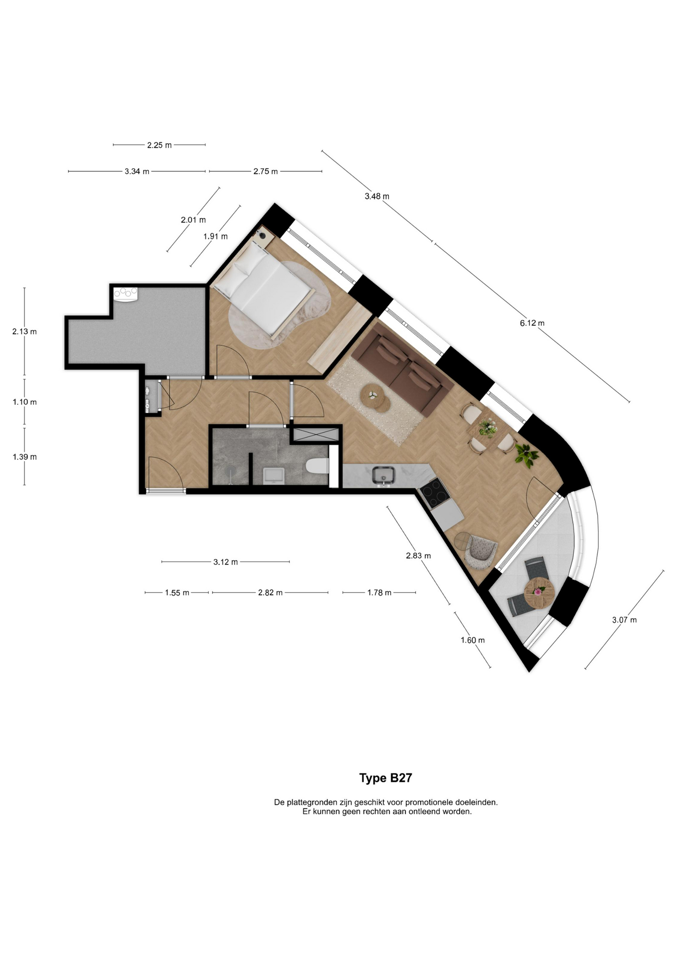
Woningtype B27

Aantal kamers: 2 
Huurprijs € 910 (prijspeil 2026) 
WWS oppervlakte ca 32m2
Voor 1 à 2 persoonshuishoudens 

  • Gelegen op 7e t/m 11e verdieping
  • Woonkamer met open keuken
  • 1 slaapkamer
  • Badkamer met toilet (hangtoilet)
  • Berging mechanische ventilatie (WTW) en wasmachineaansluiting
  • De woning heeft een eigen buitenruimte
  • Externe berging aanwezig
Voorbeeldplattegrond 2-kamerwoning type B27
Voorbeeldplattegrond 2-kamerwoning type B27

Woningtype B28

Aantal kamers: 2 
Huurprijs € 713,02 (prijspeil 2026) 
WWS oppervlakte ca 31m2
Voor 1 à 2 persoonshuishoudens 

  • Gelegen op 7e t/m 11e verdieping
  • Woonkamer met open keuken (rechte keuken)
  • 1 slaapkamer
  • Badkamer
  • Apart toilet (hangtoilet)
  • Berging mechanische ventilatie (WTW) en wasmachineaansluiting
  • Geen eigen buitenruimte
  • Externe berging aanwezig
Voorbeeldplattegrond 2-kamerwoning type B28
Voorbeeldplattegrond 2-kamerwoning type B28

Woningtype B29

Aantal kamers: 2 
Huurprijs € 713,02 (prijspeil 2026) 
WWS oppervlakte ca 29,5m2
Voor 1 à 2 persoonshuishoudens 

  • Gelegen op 9e en 10e verdieping
  • Woonkamer met open keuken (hoekkeuken)
  • 1 slaapkamer
  • Badkamer met toilet (hangtoilet)
  • Berging mechanische ventilatie (WTW) en wasmachineaansluiting
  • De woning heeft een eigen buitenruimte
  • Externe berging aanwezig
Voorbeeldplattegrond 2-kamerwoning type B29
Voorbeeldplattegrond 2-kamerwoning type B29

Woningtype B31

Aantal kamers: 2 
Huurprijs € 713,02 (prijspeil 2026) 
WWS oppervlakte ca 35m2
Voor 1 à 2 persoonshuishoudens 

  • Gelegen op 9e en 11e verdieping
  • Woonkamer met open keuken (hoekkeuken)
  • 1 slaapkamer
  • Badkamer met toilet (hangtoilet)
  • Berging mechanische ventilatie (WTW) en wasmachineaansluiting
  • Geen eigen buitenruimte
  • Externe berging aanwezig
Voorbeeldplattegrond 2-kamerwoning type B31
Voorbeeldplattegrond 2-kamerwoning type B31

Voorbeeldplattegronden van een driekamerwoning

Woningtype C0

Aantal kamers: 3
Huurprijs € 910 (prijspeil 2026) 
WWS oppervlakte ca 47,5m2
2 x 1 à 2 persoonshuishoudens 
2 x voorrang klein gezin 

  • Gelegen op 2e t/m 5e verdieping
  • Woonkamer met open keuken (rechte keuken)
  • 2 slaapkamers
  • Badkamer met toilet (hangtoilet)
  • Berging mechanische ventilatie (WTW) en wasmachineaansluiting
  • De woning heeft een eigen buitenruimte
  • Externe berging aanwezig
Voorbeeldplattegrond 3-kamerwoning type C0
Voorbeeldplattegrond 3-kamerwoning type C0

Woningtype C4

Aantal kamers: 3
Huurprijs € 910 (prijspeil 2026) 
WWS oppervlakte ca 38m2
Voor 1 à 2 persoonshuishoudens 

  • Gelegen op 3e t/m 6e verdieping
  • Woonkamer met open keuken (hoekkeuken)
  • 2 slaapkamers
  • Badkamer
  • Apart toilet (hangtoilet)
  • Berging mechanische ventilatie (WTW) en wasmachineaansluiting
  • De woning heeft een eigen buitenruimte
  • Externe berging aanwezig
Voorbeeldplattegrond 3-kamerwoning type C4
Voorbeeldplattegrond 3-kamerwoning type C4

Woningtype C5

Aantal kamers: 3
Huurprijs € 910 (prijspeil 2026) 
WWS oppervlakte ca 44m2
Voor 1 à 2 persoonshuishoudens 

  • Gelegen op 3e t/m 5e verdieping
  • Woonkamer met open keuken (rechte keuken)
  • 2 slaapkamers
  • Badkamer met toilet (hangtoilet)
  • Berging mechanische ventilatie (WTW) en wasmachineaansluiting
  • De woning heeft een eigen buitenruimte
  • Externe berging aanwezig
Voorbeeldplattegrond 3-kamerwoning type C5
Voorbeeldplattegrond 3-kamerwoning type C5

Woningtype C8

Aantal kamers: 3
Huurprijs € 910 (prijspeil 2026) 
WWS oppervlakte ca 50m2
Voor 1 à 2 persoonshuishoudens 

  • Gelegen op 7e en 8e verdieping
  • Woonkamer met open keuken (rechte keuken)
  • 2 slaapkamers
  • Badkamer
  • Apart toilet (hangtoilet)
  • Berging mechanische ventilatie (WTW) en wasmachineaansluiting
  • De woning heeft een eigen buitenruimte
  • Externe berging aanwezig
Voorbeeldplattegrond 3-kamerwoning type C8
Voorbeeldplattegrond 3-kamerwoning type C8